Objektbeschreibung
Traumhafte Maisonette-Wohnung in Stockerau – viel Platz für die ganze Familie!
Zum Verkauf gelangt eine charmante Maisonette-Eigentumswohnung, welche sich befindet in ruhiger Lage befindet und nur wenige Minuten vom Stadtzentrum entfernt ist. Es handelt sich um eine Wohngegend mit idealer Infrastruktur für Familien: Schulen, Kindergärten, Einkaufsmöglichkeiten sowie öffentliche Verkehrsmittel sind in unmittelbarer Nähe erreichbar. Auch die Anbindung nach Wien ist hervorragend – mit der Schnellbahn oder dem Auto sind Sie in kurzer Zeit in der Hauptstadt.
Die Wohnung
Die großzügig geschnittene Wohnung erstreckt sich über das 1. und 2. Dachgeschoss einer gepflegten Wohnanlage. Mit einer Wohnnutzfläche von ca. 102 m² bietet sie ausreichend Platz für die ganze Familie. Ein durchdachter Grundriss, helle Räume und die robuste Bauweise sorgen für ein behagliches Wohngefühl.
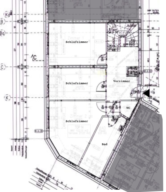
1. Dachgeschoss (ca. 64,5 m²):
- Vorraum (13,02 m²)
- WC (1,54 m²)
- Badezimmer mit Einbauwanne (8,51 m²)
- Zimmer (13,96 m²) – ideal als Kinderzimmer
- Zimmer (10,79 m²) – z. B. als Büro oder weiteres Kinderzimmer
- Zimmer (14,68 m²) – perfekt als Elternschlafzimmer
- Abstellraum (2,02 m²)
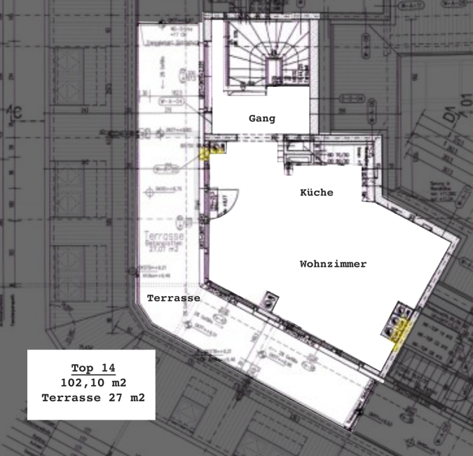
2. Dachgeschoss (ca. 37,6 m²):
- Gang (5,37 m²)
- Großzügige Wohnküche (32,21 m²) mit Zugang zur Terrasse
Highlight: Sonnenterrasse
Von der lichtdurchfluteten Wohnküche gelangen Sie direkt auf die vorgelagerte Terrasse mit ca. 27 m².
Zusätzliche Nutzflächen
- Ein Kellerabteil mit ca. 5,33 m²
- Ein Tiefgaragenstellplatz
- Optional: eine zusätzliche Garage kann angemietet werden
Bauweise & Ausstattung
- Massive Bauweise, Mansarddach
- Vollwärmeschutzfassade mit Kunstharzputz
- Holz- und Kunststofffenster mit Isolierverglasung
- Laminat- und Fliesenböden
- Fernwärme-Zentralheizung mit Warmwasseraufbereitung
Kosten
Die Betriebskosten inklusive Verwaltung und Erhaltungsbeitrag betragen EUR 484,14 brutto.
Der Instandhaltungsfonds weist per 05.2025 ein Guthaben in Höhe von rund € 40.300,00 auf.
Die Höhe des monatlichen Nutzungsgeldes, inklusive Darlehensrückzahlung sowie Kosten für die Garage und die Zusatzgarage, beträgt € 400,02.
Auf das gegenständliche Objekt bestehen Wohnbauförderungsdarlehen. Bei vorzeitiger Auszahlung der Darlehen, gilt keine verpflichtende Hauptwohnsitzmeldung.
Die Wohnung wurde im Zuge einer geförderten Wohnbaufinanzierung errichtet. Bitte beachten Sie, dass gemäß den Förderbedingungen eine Spekulationsfrist von 15 Jahren ab Kaufdatum gilt. Ein Weiterverkauf ist daher aktuell nur unter Berücksichtigung dieser rechtlichen Rahmenbedingungen möglich und für Eigennutzer geeignet.
Der Vermittler ist als Doppelmakler tätig.
Ausstattung
Fliesen, Laminat, Zentralheizung, Wohnküche / offene Küche, Personenaufzug, Bad mit Fenster, Badewanne, Tiefgarage, Fernwärme, Südwestbalkon / -terrasse, Fahrradraum, Abstellraum, Außenliegender Sonnenschutz, Toilette, Mansarddach, Massiv, Stadtblick, Fernblick, Doppel- / Mehrfachverglasung, Kunststofffenster
Energieausweis
HWB: B, 32,00 kWh/m
2a
fGEE: 0,70
gültig bis 17.10.2030